追光M8(标准版&全封闭)

Chasing Light M8 (Standard & Fully Enclosed )

在线咨询

追光M8(标准版&全封闭)

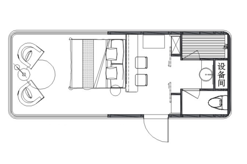
  • 占地面积: 27.39㎡
  • 整体重量: 6.2吨
  • 外形尺寸: 长8300mm / 宽3300mm / 高3200mm /
  • 入住人数: 1-2人
  • 用电功率: 10KW
占地面积 27.39㎡
整体重量 6.2吨
外形尺寸 长8300mm / 宽3300mm / 高3200mm /
入住人数 1-2人
用电功率 10KW

相关产品

追光M8(标准版&全封闭)

追光M8(标准版&全封闭)

Chasing Light M8 (Standard & Fully Enclosed )